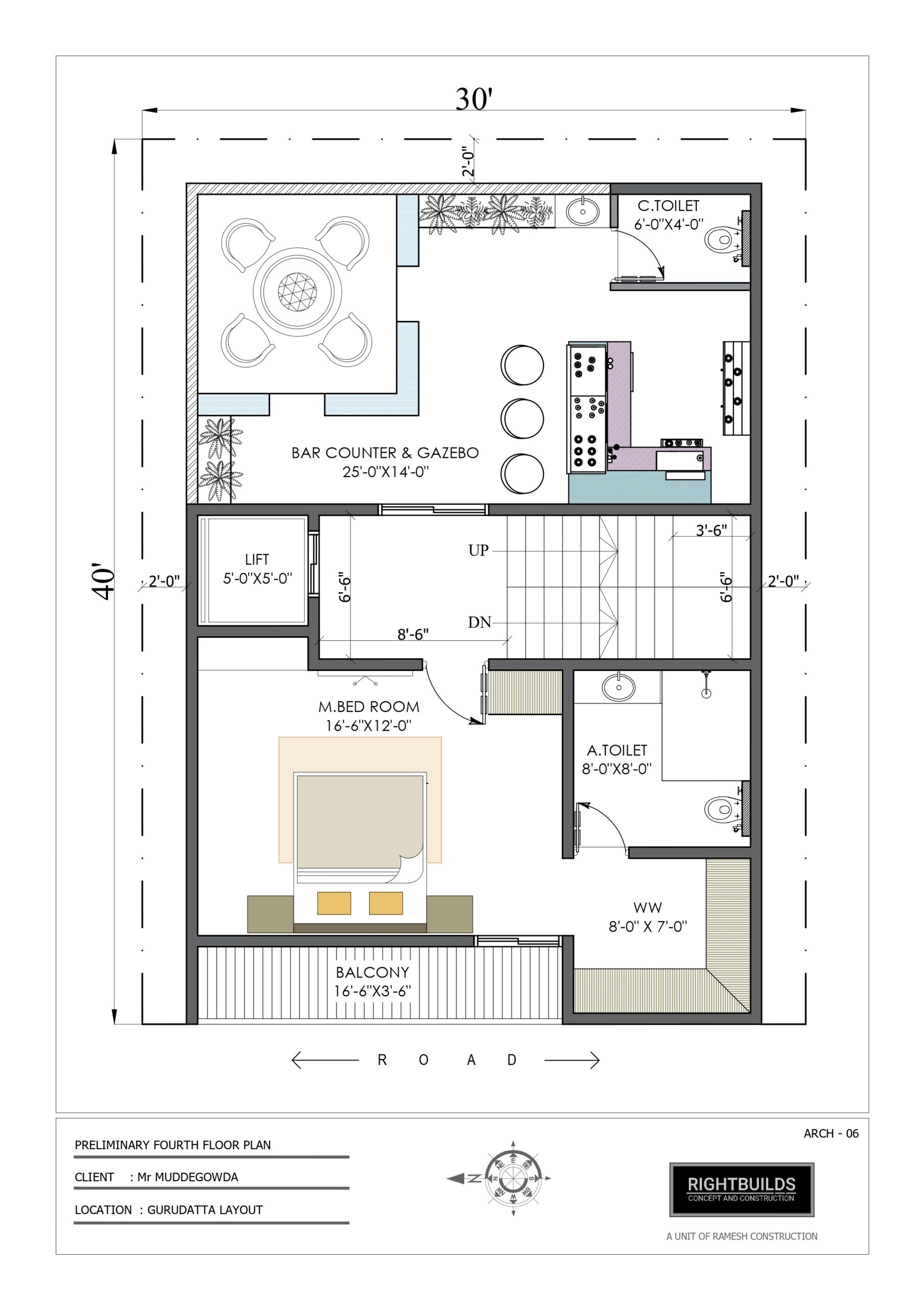
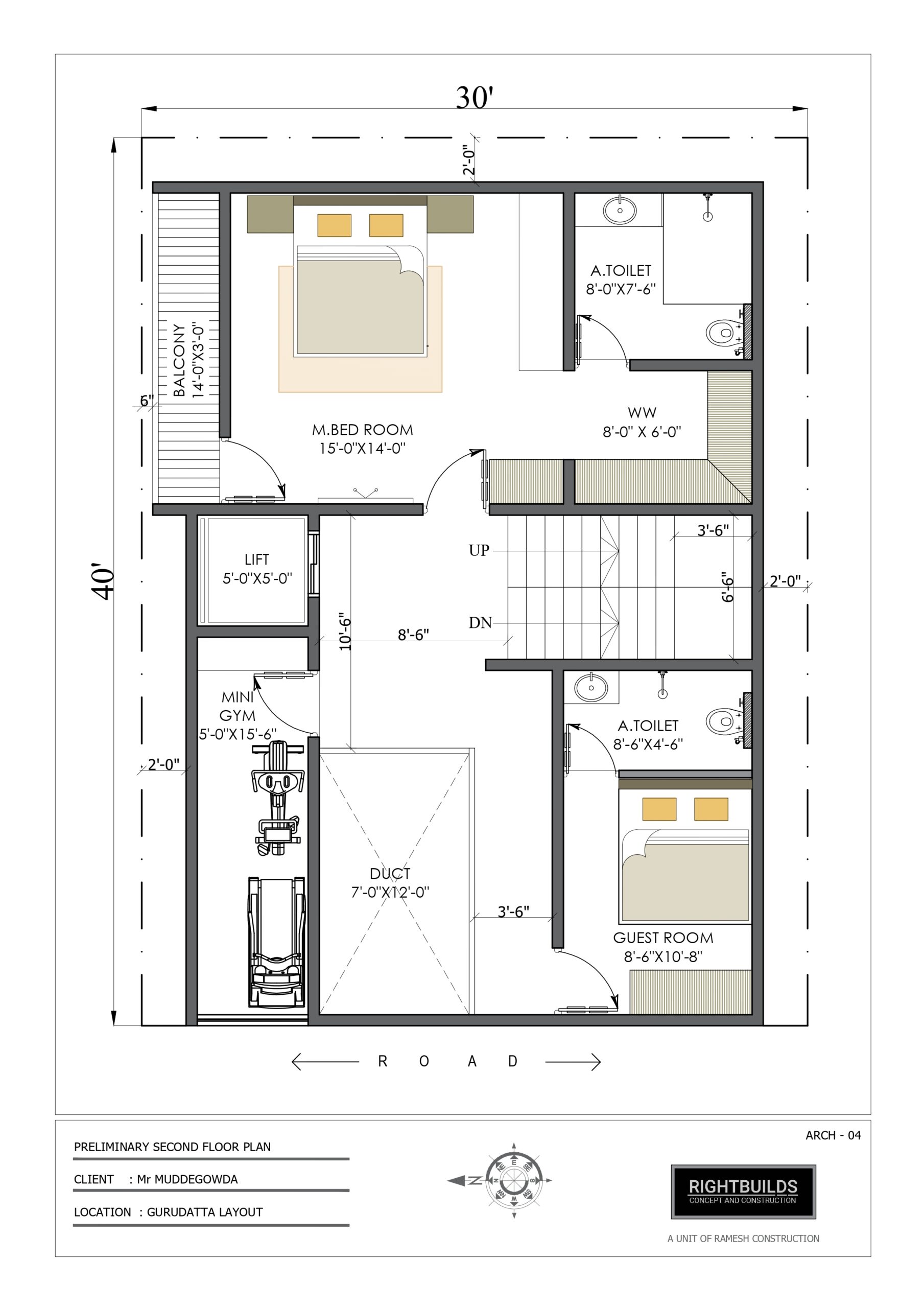
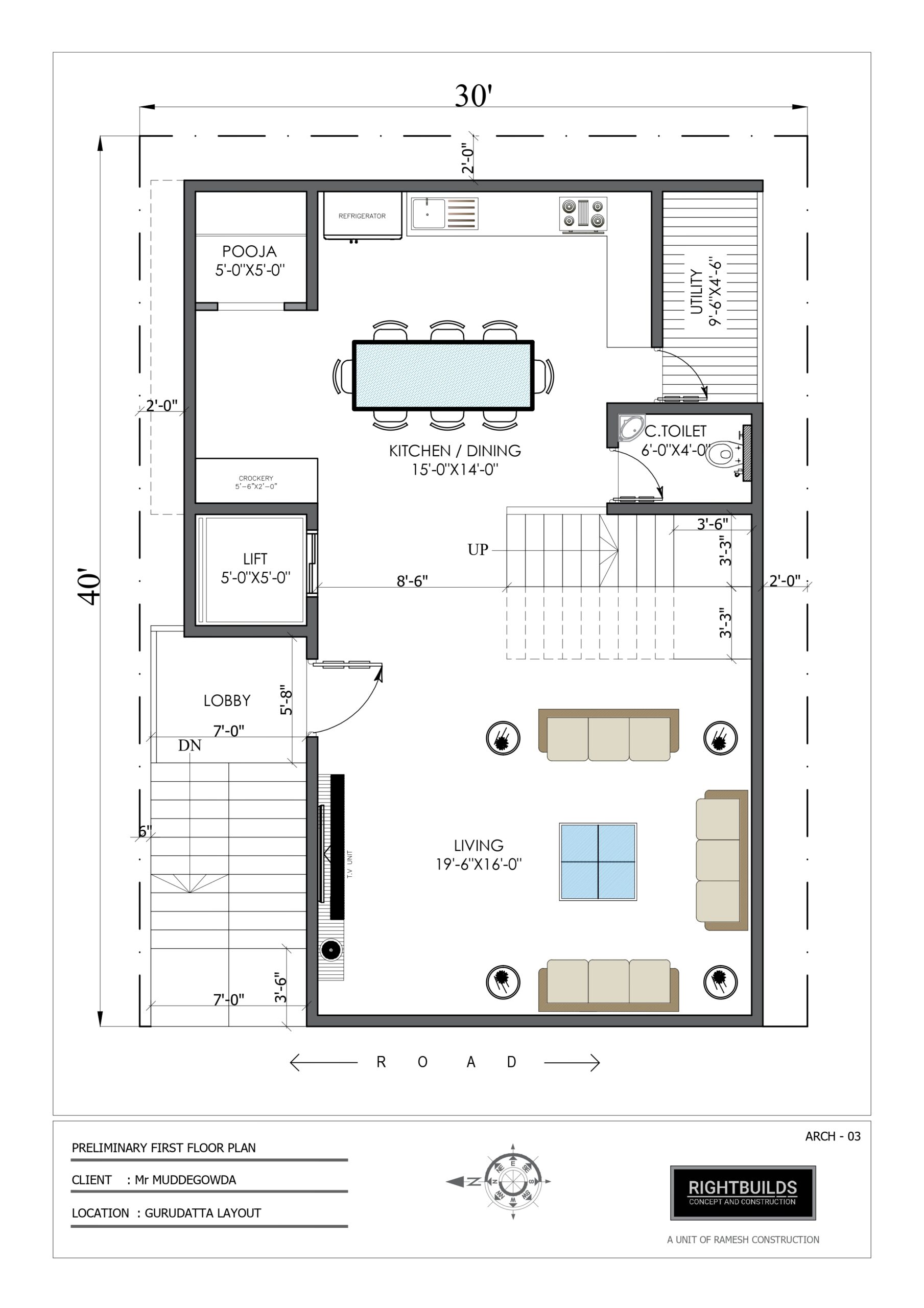
rightbuilds.com

Gallery

Gallery

Scroll to Top